Eingabehilfen öffnen

Zum Hauptinhalt springen

Überwachungssystem für Kraftfutterstation

Perfekter Schutz für moderne Fütterungssysteme

Gezielte Fütterung, gesunde Pferde – ganz automatisch

Automatisierte Fütterungssysteme sind ein wichtiger Bestandteil moderner Stallkonzepte. Damit diese Technik dauerhaft zuverlässig funktioniert, benötigt sie einen optimalen Schutz vor Witterung und eine durchdachte Integration in die Stallanlage. Mit der Systemüberdachung von Conrads bieten wir eine speziell entwickelte Lösung für Kraftfutterstationen – präzise geplant, hochwertig gefertigt und perfekt auf die Anforderungen moderner Aktivställe abgestimmt. Hier ein Beispiel mit der Firma HIT.

Unsere Überdachungssysteme schützen die Kraftfutterstation zuverlässig vor Regen, Schnee und intensiver Sonneneinstrahlung. Gleichzeitig sorgen sie dafür, dass die Technik jederzeit zugänglich bleibt und der automatische Fütterungsablauf reibungslos funktionieren kann.

Die Vorteile einer Conrads-Systemüberdachung

  • Zuverlässiger Witterungsschutz für Heudosierer, Technik und Futter
  • Perfekte Passgenauigkeit für automatische Fütterungssysteme
  • Nahtlose Integration in bestehende Aktivstall- und Stallkonzepte
  • Robuste und langlebige Holzbauweise aus eigener Produktion
  • Durchdachte Konstruktion für Wartung, Bedienung und täglichen Betrieb
  • Hochwertige und harmonische Optik, die Funktion und Architektur verbindet
Technische Daten & Ausstattungs­optionen:
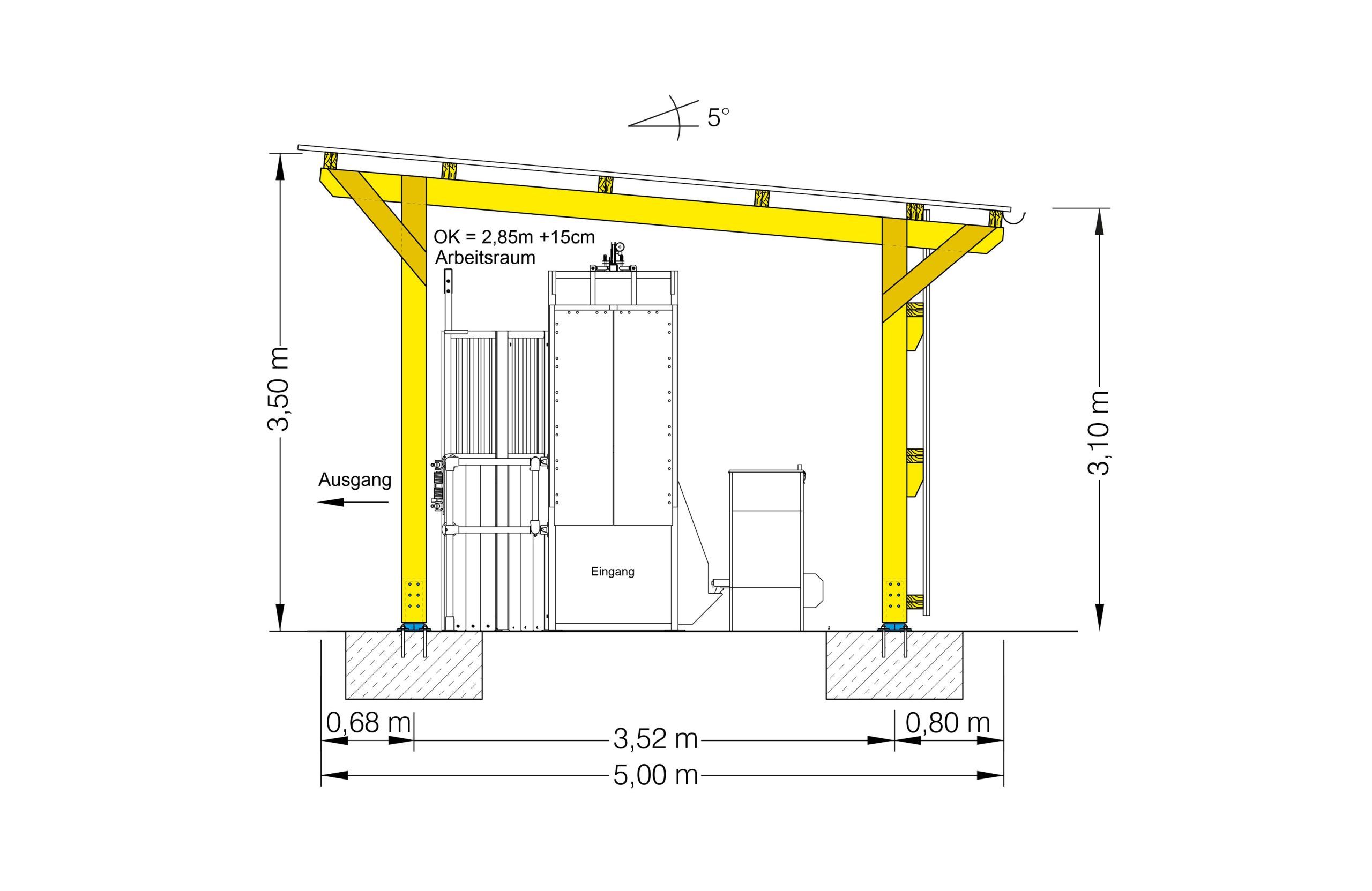
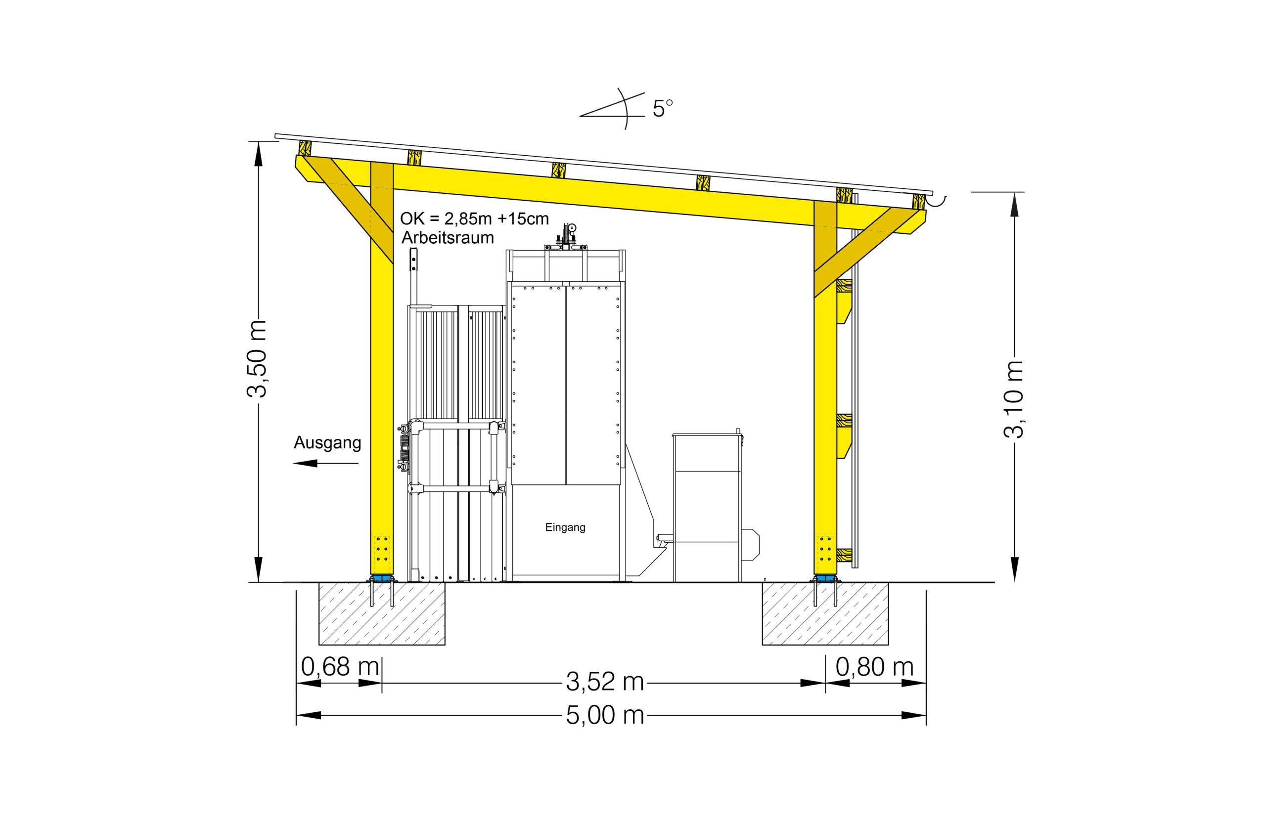
Hallenskizze